Olivier SUCHET Négociateur
Télécharger la fiche
+11
Sous-compromis Exclusivité

Appartement 5 pièce(s) 4 chambre(s) 133 m²

Saint-Jorioz (74410)
630 000 € Référence 2009

Caractéristiques de ce bien

  • Surface 133 m²
  • carrez 132,50 m²
  • 4 chambre(s)
  • 1 salle(s) de bain
  • 1 salle(s) d'eau
  • construit en 2020
  • Chauffage collectif : radiateur (gaz de ville)
  • Chauffage collectif : radiateur (gaz de ville)
  • 1 garage(s)
  • exposition Sud
  • 3 niveau(x)
  • 2ème étage
  • ascenseur
  • terrasse
  • interphone
  • accès handicapé

A propos de ce bien

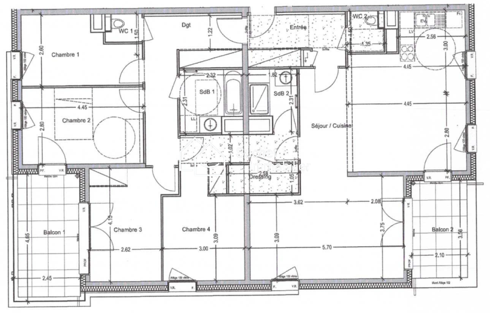
Excusivité - Saint-Jorioz centre, côté lac : Appartement de 133 m² dans copropriété de 2020.

Vous apprécierez la proximité du lac et de toutes les commodités ainsi que la modernité de l'appartement et de la copropriété. Cet appartement fonctionnel est aux normes PMR (personnes à mobilité réduite) avec un DPE B.

Il comprend :

- Un grand espace de vie avec cuisine équipée, salle à manger et salon donnant sur une terrasse.

- 4 chambres dont un espace suite parentale avec dressing et salle d'eau, et 2 chambres donnant sur une seconde terrasse.

- Une salle de bains et 2 WC indépendants

- De nombreux dressings / placard de qualité.

- Parking de copropriété

Possibilité garage de 33m² avec porte électrique, électricité et accès direct à l'appartement par ascenseur

Diagnostics énergétiques

Consommation énergétique
A B C D E F G
Emission de gaz à effet de serre
A B C D E F G
DPE ANCIENNE VERSION

Informations financières

Prix de vente honoraires TTC inclus 630 000 €
Charges 211 €
Taxe foncière annuelle 1 595 €

Informations de copropriété

Copropriété Oui
Nombre de lots 118
Quote part annuelle des charges 2 533 €
Plan de sauvegarde Non
Statut du syndic Pas de procédure en cours

Autour du bien

  • Commerces et santé
  • Loisirs
  • Ecoles
  • Transports
  • Pratique

Calcul des mensualités

* Champs obligatoires