SUCHET Immobilier Agence
Télécharger la fiche
+11

Terrain 823 m² 823 m²

Saint-Jean-de-Sixt (74450)
349 000 € Référence 2160-4

Caractéristiques de ce bien

  • terrain 823 m²
  • 4 parking(s)
  • exposition Sud
  • vue dégagée

A propos de ce bien

Saint-Jean-de-Sixt : Terrain libre de constructeur, viabilisé avec ou sans permis de construire

Secteur Mont-Durand, exposition plein sud et vue dégagée sur les montagnes

Terrain de 823 m² viabilisé et libre de constructeur dans un lotissement.

Zone : UC.

Etudes réalisées : étude thermique, étude de sol et étude de gestion des eaux pluviales

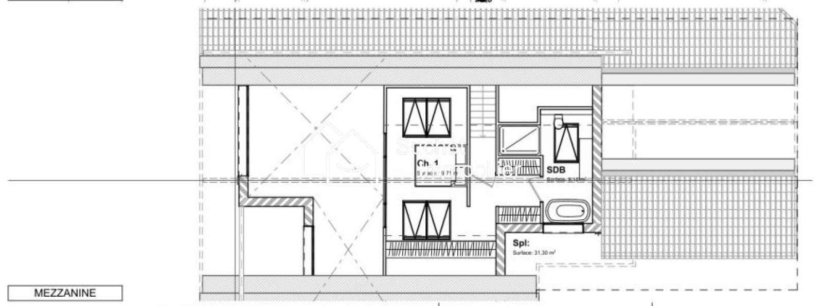
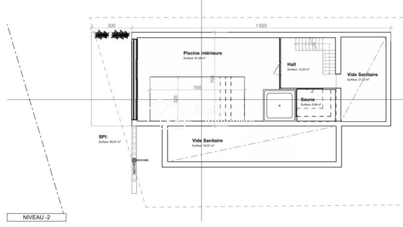
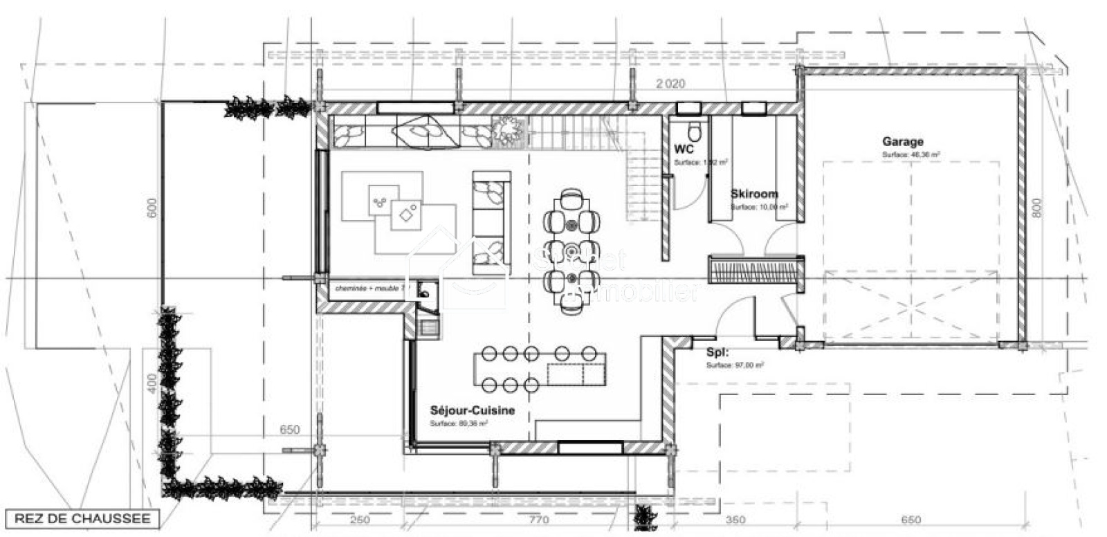
A titre informatif : Un permis pour un chalet premium de 230m² habitable et de 270 m² de surface de plancher avait été accepté (et purgé)

Informations financières

Prix de vente honoraires TTC inclus 349 000 €
Prix de vente honoraires TTC exclus 330 000 €
Honoraires TTC à la charge acquéreur 5,76 %

Autour du bien

  • Commerces et santé
  • Loisirs
  • Ecoles
  • Transports
  • Pratique

Calcul des mensualités

* Champs obligatoires