Olivier SUCHET Négociateur
Télécharger la fiche
+10

Terrain 661 m² 661 m²

Sévrier (74320)
535 000 € Référence 2182-2

Caractéristiques de ce bien

  • terrain 661 m²
  • Chauffage : ()

A propos de ce bien

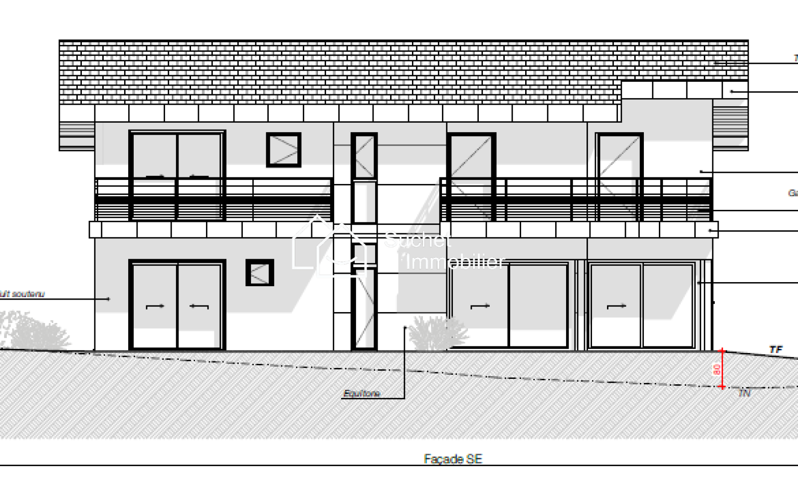
Terrain à 2 pas du lac, au calme - permis de construire accepté

Emplacement rare et privilégié à seulement quelques pas du lac, entre la piste cyclable et une charmante petite plage. Ce terrain libre de constructeur est situé dans un environnement calme et préservé.

Un permis de construire RE2020 conçu par un architecte a déjà été accordé et purgé de tout recours, avec l’aval des concessionnaires. Il propose une maison au design soigné, dont les plans intérieurs peuvent encore être adaptés selon vos besoins.

Caractéristiques du projet :

  • Surface habitable : 138,72 m²

  • Garage : 17,50 m²

  • 3 places de stationnement

  • Terrain viabilisé en bordure

  • Étude de sol réalisée – construction nécessitant des pieux

Possibilité d'accompagnement avec un constructeur local partenaire via un contrat CCMI (Contrat de Construction de Maison Individuelle).

Informations financières

Prix de vente honoraires TTC inclus 535 000 €
Prix de vente honoraires TTC exclus 505 000 €
Honoraires TTC à la charge acquéreur 5,94 %

Autour du bien

  • Commerces et santé
  • Loisirs
  • Ecoles
  • Transports
  • Pratique

Calcul des mensualités

* Champs obligatoires